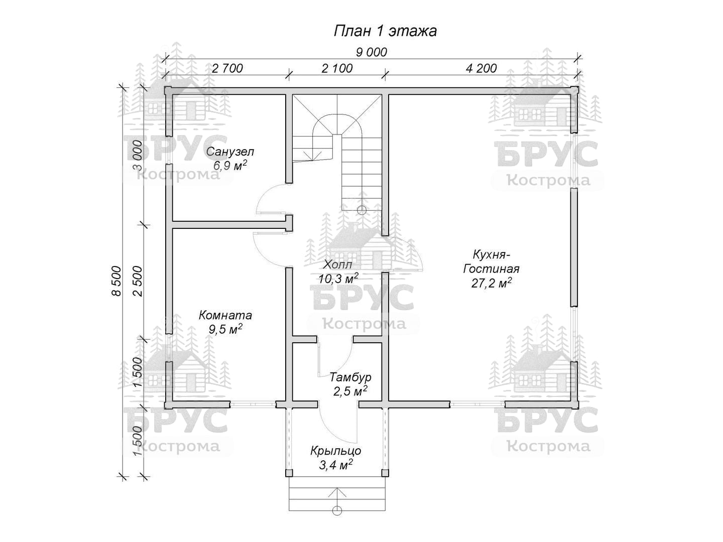
Планы этажей

 

У нас собственная лесозаготовка и производство!

Подробнее о процессе можете узнать здесь.

 

Проект ДБ-77

  • Общая площадь: 107.9 м2
  • Размеры: 8.5 x 9 м
  • Этажей: 1.5

  • Высота потолка 1 этажа
    2,7 м
  • Высота потолка 2 этажа
    2,6 м
  • Рубка угловых соединений
    В "Ласточкин хвост" (теплый угол)
  • Половые балки
    Брус 100 х 150 мм
  • Потолочные балки
    Брус 100 х 150 мм
  • Стропильная система
    Брус 50 х 150 мм
  • Обрешетка крыши
    Доска 25 х 150 мм
  • Перегородки 1, 2 этаж
    Брус 100 х 150 мм
  • Материал крыши
    Рубероид
  • Расходные материалы
    Рубероид
  • Антисептик
  • Гидроизоляция
  • Деревянные нагеля
  • Джутовое льноволокно
  • Гвозди и т.д.
  • Работы в комплексе
    Доставка комплекта до участка в Московской области
  • Разгрузка комплекта материала
  • Сборка объекта на участке заказчика
  • Крыша Рубероид
    0 руб
  • Крыша Металло черепица
    354000 руб.
  • Крыша Профнастил
    312000 руб.
  • Крыша Ондулин
    277000 руб.
  • Фундамент Ваш
    0 руб
  • Фундамент Свайно-винтовой
    136000 руб. (за 22 свай)
  • Фундамент ЖБ сваи
    142000 руб.
  • Фундамент Тип А (по запросу)
    по запросу


Калькулятор стоимости

(рассчитайте этот проект, выбирая опции)


1. Выберите сечение бруса
150х150
145х145 (Проф)
150х200
145х195 (Проф)
2. Выберите крышу
Рубероид
Металло черепица
Профнастил
Ондулин
3. Выберите фундамент
Свайно-винтовой
ЖБ сваи
Тип А (по запросу)

Cтоимость проекта под усадку
1313000 руб.


Есть вопросы? Андрей расскажет подробности этого дома. Чтобы позвонить ему нажмите кнопку



или позвоните ему по номеру +7 (905) 151-88-12
Проект: ДБ-77 Категория: Дома из бруса

Ранее вы смотрели проекты